Vorprojekt

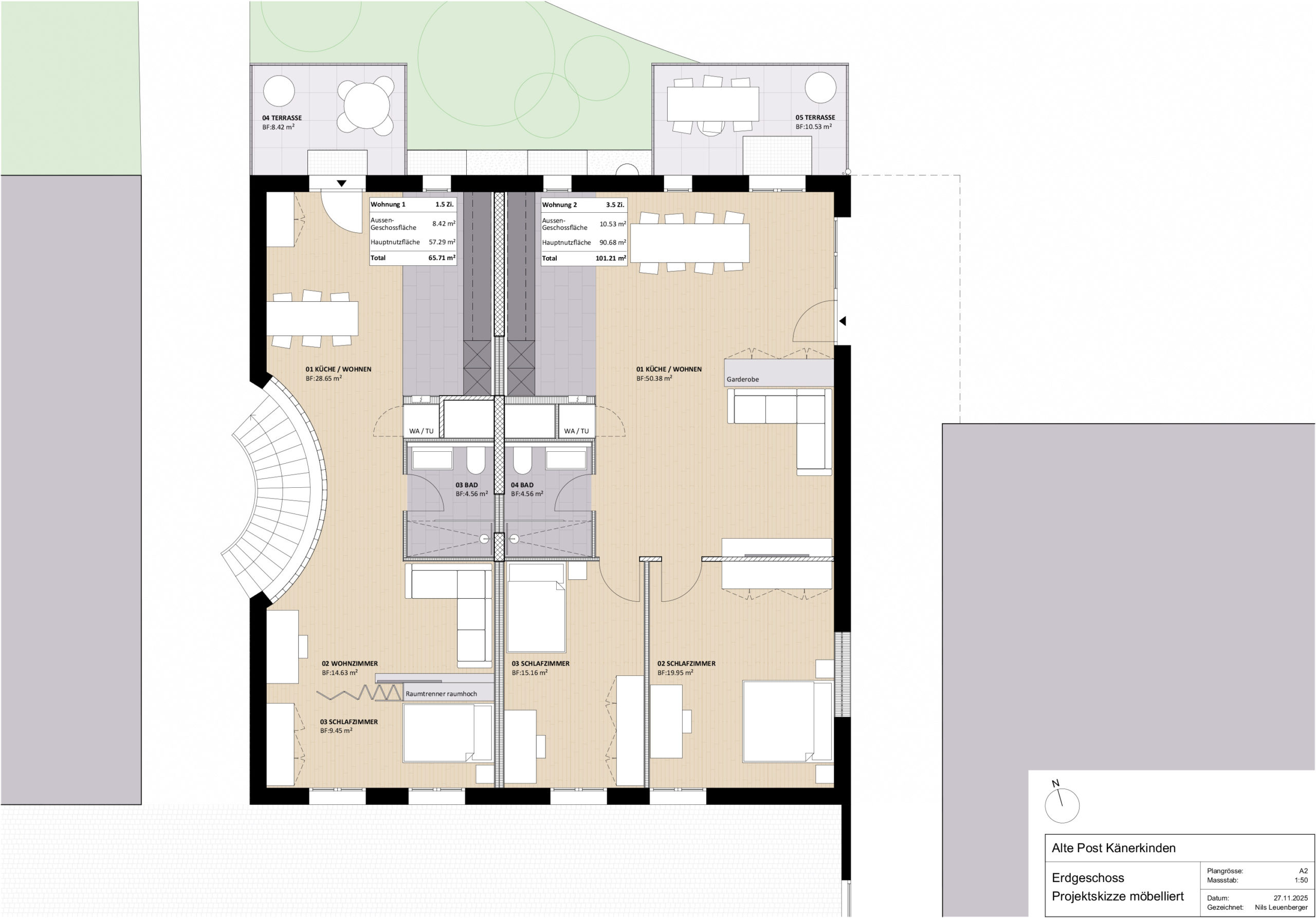
Die alte Post in der Gemeinde Känerkinden steht seit einigen Jahren leer und soll in zwei neue Wohnungen umgenutzt werden. Um die verfügbare Gesamtfläche von ca. 160 m² optimal zu nutzen, wurde eine Aufteilung in eine 1,5-Zimmer- und eine 3,5-Zimmer-Wohnung gewählt. In der zentralen Wohnungstrennwand werden die Haustechnikleitungen der bestehenden Wohnungen im Obergeschoss und der neu geplanten Wohnungen zusammengeführt. Der Entwurf nutzt ausschliesslich die bestehenden Öffnungen, sodass der Rohbau nicht angepasst werden muss. Dadurch ist ein kosteneffizientes Projekt mit einer kurzen Bauzeit möglich. Das Projekt wird von einem anderen Vorstudienteilnehmer ausgeführt.

Fertigstellung

2025

Location

Känerkinden

Kunde

Gemeinde Känerkinden

Bausumme (CHF)

Nach oben scrollen

Ausführungsplanung

Auftragsgestaltung

Wir bieten Ihnen eine breite Palette der Ausführungsplanung an, diese reicht von der Erstellung von 1:50 Werkplänen bis hin zur Entwicklung von 1:5 Details. Um Ihnen auch bei komplexen Projekten die perfekte Lösung anbieten zu können, arbeiten wir eng mit Fachspezialisten zusammen. Dabei setzen wir ausschliesslich auf das CAD-Programm ArchiCAD. Unsere Erfahrung ermöglicht es uns, die beste Mischung aus 2D und 3D-Planung für Ihr Projekt zu beurteilen und umzusetzen. Wir stehen Ihnen jederzeit zur Verfügung und begleiten Sie von der Planung bis zur Fertigstellung Ihres Projektes.

Gerne unterstützen wir sie bei Ihrem Vorhaben

Bauleitung

Auftragsgestaltung

Wenn Sie aus Kapazitätsgründen oder zur Präsenzsicherung Unterstützung auf der Baustelle benötigen, sind wir die richtige Wahl! Wir helfen Ihnen bei der Dokumentation des Baufortschritts und unterstützen Sie bei Besprechungen. Wir vertreten Ihre Meinung und Interessen und sorgen dafür, dass Ihr Projekt erfolgreich abgeschlossen wird. Mit unserem digitalen Know-how sind wir flexibel und können uns an die neuesten Bauprogramme und Ihre Arbeitsweise anpassen.

Gerne unterstützen wir sie bei Ihrem Vorhaben

Vermarktungspläne

Auftragsgestaltung

Sie möchten Ihre Immobilie besser vermarkten und potenzielle Mieter von Anfang an überzeugen? Wir erstellen für Sie hochwertige Vermarktungsgrundrisse, die Ihre Wohnung oder Ihr Haus optimal präsentieren. Unsere Grundrisse sind nicht nur ästhetisch ansprechend, sondern auch funktional und informativ. Sie zeigen auf einen Blick die Raumaufteilung, die Grösse der Zimmer und die Lage der Fenster und Türen. So können sich Interessenten ein realistisches Bild von der Immobilie machen und sich besser vorstellen, wie sie darin wohnen würden. Professionelle Inserate sind ein wichtiger Faktor, um zuverlässige Mieter oder Käufer anzusprechen und Ihre Immobilie erfolgreich zu vermieten oder zu verkaufen.

Gerne unterstützen wir sie bei Ihrem Vorhaben

Baueingabe

Auftragsgestaltung

Ob Sie ein Einfamilienhaus oder einen neuen Carport bauen möchten, wir können Ihnen bei der Einreichung Ihres Bauvorhabens behilflich sein. Wir kennen die Bauvorschriften in Ihrer Region und können Ihnen helfen, die erforderlichen Genehmigungen zu erhalten. Wir wissen, dass die Einreichung eines Bauantrags sehr zeitaufwendig sein kann, daher bieten wir unsere Leistung sowohl als Freelancer als auch für Privatkunden an.

Gerne unterstützen wir sie bei Ihrem Vorhaben

Plandigitalisierung

Auftragsgestaltung

Sie planen ein neues Bauprojekt und benötigen digitale Pläne als Grundlage? Wir bieten Ihnen eine professionelle Digitalisierung Ihrer alten Papierpläne zum Fixpreis an. Dabei bereiten wir die Pläne entweder als übersichtliche 2D-Pläne oder als detailliertes 3D-Modell auf. Mit unserer Hilfe können Sie sicherstellen, dass Ihre Bauprojekte auf einer soliden Grundlage basieren und Sie alle notwendigen Informationen digital zur Hand haben, um Ihre Projekte erfolgreich umzusetzen.

Gerne unterstützen wir sie bei Ihrem Vorhaben

Plandigitalisierung

Auftragsgestaltung

Sie planen ein neues Bauprojekt und benötigen digitale Pläne als Grundlage? Wir bieten Ihnen eine professionelle Digitalisierung Ihrer alten Papierpläne zum Fixpreis an. Dabei bereiten wir die Pläne entweder als übersichtliche 2D-Pläne oder als detailliertes 3D-Modell auf. Mit unserer Hilfe können Sie sicherstellen, dass Ihre Bauprojekte auf einer soliden Grundlage basieren und Sie alle notwendigen Informationen digital zur Hand haben, um Ihre Projekte erfolgreich umzusetzen.

Gerne unterstützen wir sie bei Ihrem Vorhaben